
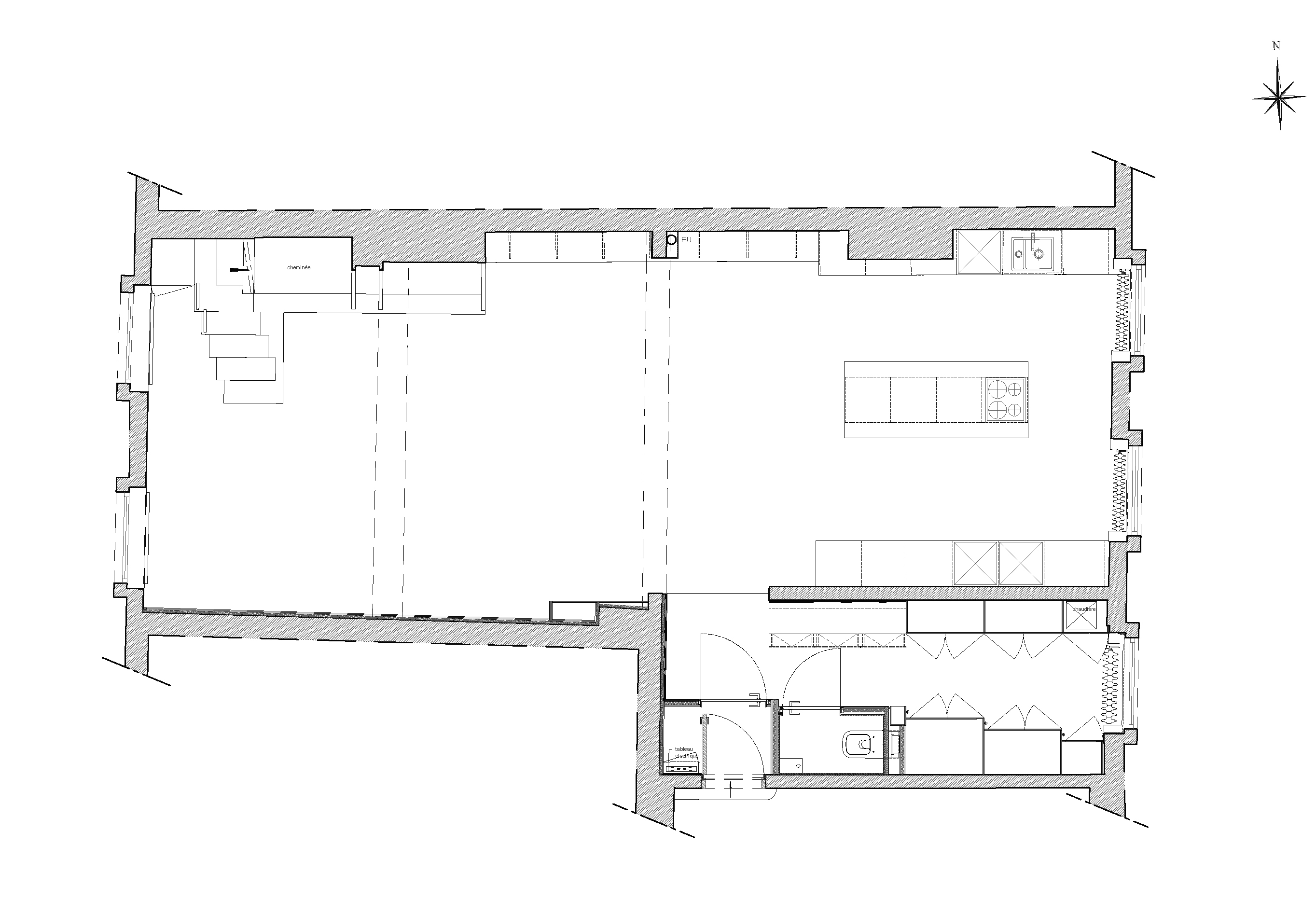
Le projet consiste à rénover et à réagencer intégralement l’intérieur d’un appartement niché sous les toits parisiens dans le célèbre quartier du marais. Le concept de cette réhabilitation a été de révéler au maximum la lumière naturelle au coeur même de l’appartement. Les murs entre les pièces ont été supprimés et un jeu de volumes et de vides profite pleinement des fenêtres des façades est et ouest d’un immeuble antérieur de 200 ans à l’architecture haussmannienne. Les volumes ont été repensés pour pouvoir suivre la trajectoire du soleil tout au long de la journée. Ces derniers ont été décloisonnés à l’horizontale comme à la verticale pour offrir de la double hauteur à chaque extrémité de l’appartement et créer un espace traversant. L’intérieur de chaque pièce a été dessiné avec une palette de couleur et de matière unique pour offrir une identité propre à chaque lieu. L’espace de vie présente un jeu de reliefs colorés et de volumes qui forment l’escalier et la cheminée. Une plantation intérieure tombe en cascade sur un mur en mezzanine soulignant l’importance de la nature et de ses rythmes.
